As home styles evolve and client demands change, Yankee Barn Homes faces ever-shifting challenges when designing a new home. We consider a number of factors when designing the ideal house plan for a family. First are the family’s needs and lifestyle. Then budget, property size, shape, and location are explored. Often times, the L shaped floor plan solves a number of design concerns.
While most buyers usually have ideas of what they want in a house – their “must-haves” and wish lists – a professional’s advice/suggestions carries considerable weight in their selection of style and floor plan.
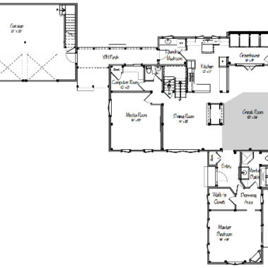
Yankee Barn Homes often recommends an L-shaped floor plan – a layout once overlooked by homeowners. The L-shaped design is emerging as an appropriate option for both city and suburban residential neighborhoods. The “L” is so adaptable it can be used on large or small properties, on flat ground, a narrow lot, or a sloped site.
Aside from its appeal and versatility, the L-shaped floor plan addresses privacy and noise concerns. It also helps with landscaping issues and the construction of big houses on a sloped or narrow lot.
Here is a closer look at several Yankee Barn house plans designed in an L-shape. We explain the advantages and solutions they provide.
Advantages of an L Shaped House Plan
Open Spaces An open floor concept creates an inviting, bright, and welcoming space.
Indoor-Outdoor Flow The layout of the L-shaped floor plan lends itself to a seamless continuity of indoors and outdoors.
Greater Design Possibilities A dynamic L-shaped design allows the homeowner potential for development and customization – to personalize the space, do some hard landscaping, and add more amenities such as an infinity pool, a meditation or rock garden, or an outdoor kitchen/entertainment area.
Views Whether your home is on an expansive property or in a subdivision with nearby neighbors, an L-shaped floor plan allows you to take advantage of the views along one side of your property.
Problem Solving
Beyond its visual charm, the L-shape plan may resolve some problematic factors related to the property’s location and the family’s specific needs.
- There is the issue of privacy in crowded areas – or, even in grand homes built in properties with tons of acreage. Families can achieve their desired privacy and seclusion from neighbors without erecting a wall around their home. Here’s where the L-shape plan comes in handy. It can be used to box off the backyard or the courtyard so that the family is hidden from street view.
- The creation of separate physical zones for social spaces and bedrooms also helps with privacy concerns – and tones down the noise coming from loud music, traffic and other distractions.
- In regions of the country with powerful winds, the L-shape design protects the home by providing shelter against these forces of nature, especially if the right angle of the home is oriented to point into the prevailing wind direction.
Architectural Styles and the L Shaped Design
The L-shaped floor plan afford builders, designers, and homeowners flexibility to work in a variety of architectural styles. Although Ranch style house plans most often use the L-shape, any architectural style can employ the design.




















