Wentworth
0
SQ FEET
0
BEDS
0
BATHS
Wentworth
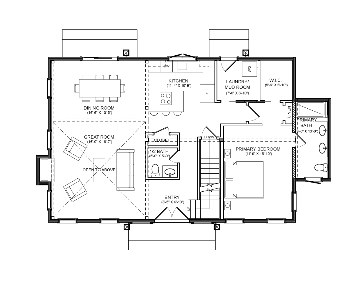
The Wentworth is a smaller barn style home patterned after our Grantham Lake House. It is a full post and beam design at 2,099 square feet of living space, 4 bedrooms, 2.5 baths, and a two car garage attached via a covered walkway.
Photography by Prologue Productions















