Vail-East
0
SQ FEET
0
BEDS
0
BATHS
Vail-East
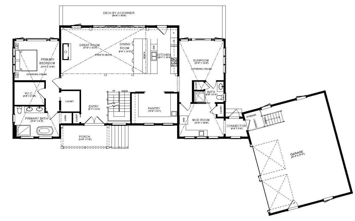
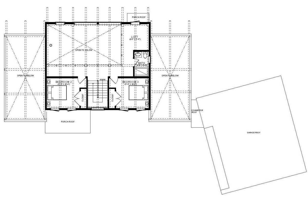
Vail-East is a new contemporary design inspired by the Hill House plan. It has 2,598 square feet of living space, 3 bedrooms, 2.5 bathrooms and an attached 832 sq ft two-car garage.
Explore Our Newest Build:
Vail-East is a new contemporary design inspired by the Hill House plan. It has 2,598 square feet of living space, 3 bedrooms, 2.5 bathrooms and an attached 832 sq ft two-car garage.