Treehouse On Fawn Meadow
Treehouse On Fawn Meadow
Treehouse On Fawn Meadow is inspired by our Springfield Barn Home. The location, chosen site plan and expanded exterior features, when taken as a whole, translate practically to a mountain home vision versus a barn home; showing the versatility of the Springfield House design.
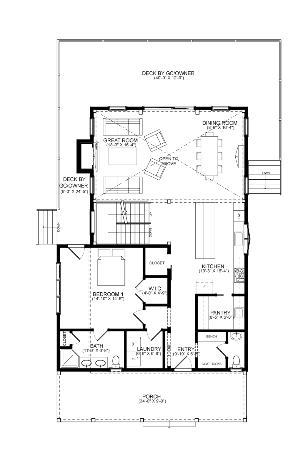
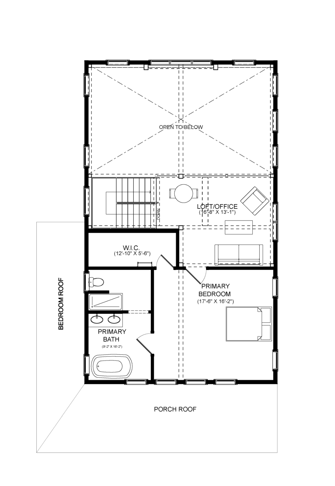
The home has 2,230 square feet of living space, 2 bedrooms (optional 3rd bedroom in finished lower level), 2.5 baths, and a two car garage-barn which is 936 square feet.
Bill and Joan incorporated a few floor plan changes as their home was going up. The changes have been incorporated into the floor plans offered here. Lila, the Bernese Mountain dog, is the Fawn Meadow Compound sentinel. Bill and Joan are her grandparents. Lila lives just down the hill with their daughter and son-in-law, Michele and Greg. She makes her compound rounds, daily.































































































