Springfield Barn Home
Springfield Barn Home
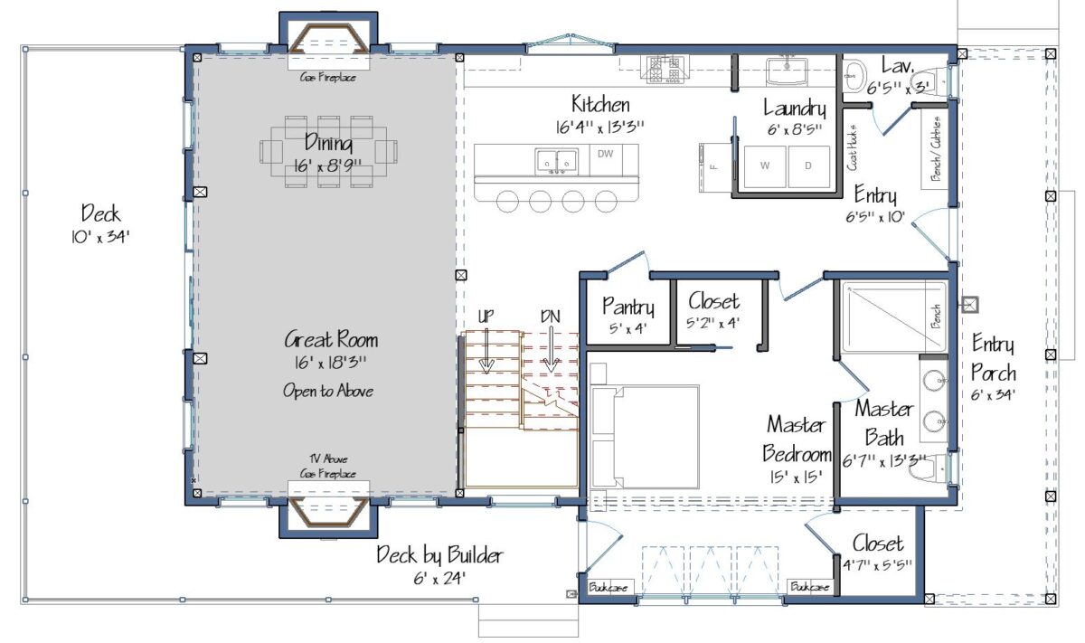
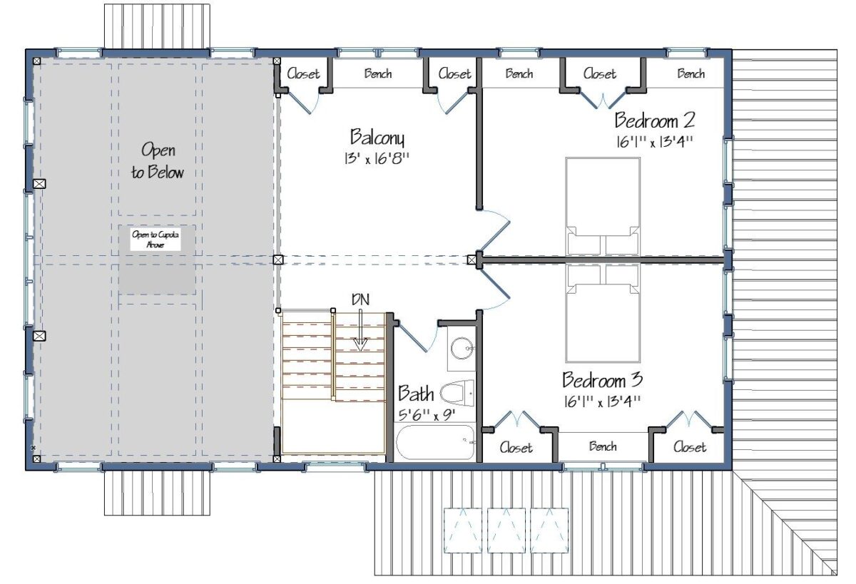
Springfield Barn Home was an exciting 2019 project. We collaborated with Cottages and Bungalows and American Farmhouse Style to build a 2,237 square foot, 3 bedroom, 2.5 bath farmhouse style home, and were thrilled by the journey.
Once the home had finished construction, YBH hosted our 50th Anniversary Celebration in the home. It was wonderful to celebrate our longevity with the community of Yankee Barn home owners.
You may read more about the house and our amazing experience via the blog links below.
Photography by Ridgelight Studio
Related Blog Posts:
From Start to Finish: The Journey of a Yankee Barn Home
Project Home 2019: The Springfield Barn Home
Project Home 2019: Exterior Finishes
Project Home 2019: Lighting Fixtures
Project Home 2019: Kitchen Reveal
Project Home 2019: Porch, Laundry, and Guest Bedroom
Project Home 2019: Master Bedroom and Bath
Project Home 2019: Living Room Reveal
Project Home 2019: Dining Room and Loft
Articles:
All articles can be found on our News page here.


















































