Northwood
0
SQ FEET
0
BEDS
0
BATHS
Northwood
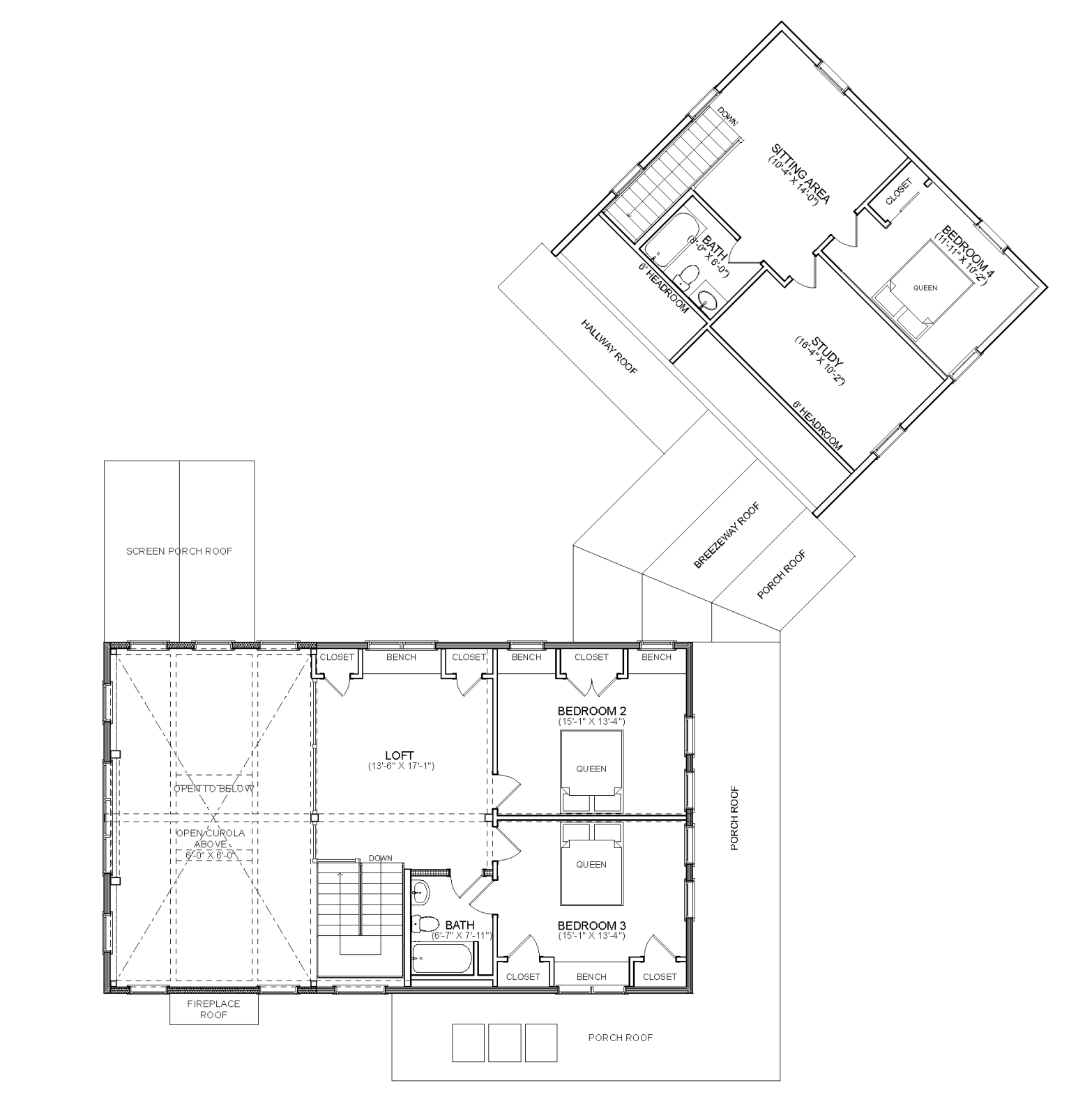
Northwood is a new design inspired by our Springfield Barn Home. Northwood closely adheres to the floor plan of Springfield with several modifications. The major changes are a single fireplace in the great room, a screen porch off the dining room, an enclosed breezeway connector, and a two-car garage with living quarters above. The house is 2,237 square feet of living space, 3 bedrooms, and 2.5 bathrooms. The space above the garage adds 583 square feet on the second level that includes a 4th bedroom and 3rd full bath.































