0
SQ FEET
0
BEDS
0
BATHS
Davis Hill
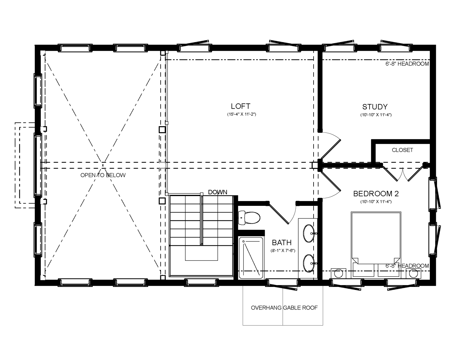
Davis Hill is a stand alone specialty build attached to an existing barn with 1,546 square feet of living space, 2 bedrooms, and 2.5 baths.
Explore Our Newest Build:
Davis Hill is a stand alone specialty build attached to an existing barn with 1,546 square feet of living space, 2 bedrooms, and 2.5 baths.