Butler-Middlebury Farmhouse
0
SQ FEET
0
BEDS
0
BATHS
Butler-Middlebury Farmhouse
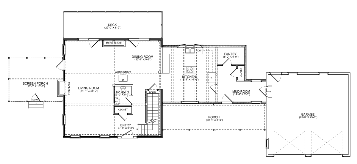
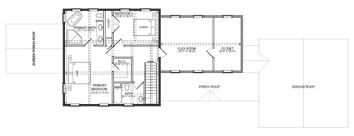
This Yankee Barn Homes farmhouse features 2,900 square feet of post and beam living space, 3 bedrooms, 2.5 baths, a farmer’s porch, a screen porch with fireplace and an attached 2-car garage.
Photography by Brittany Schones, Squarelight Photography














































