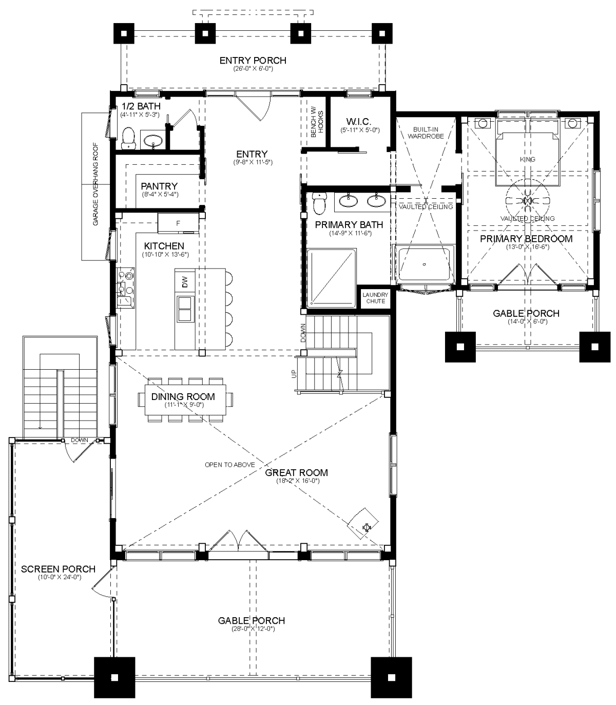
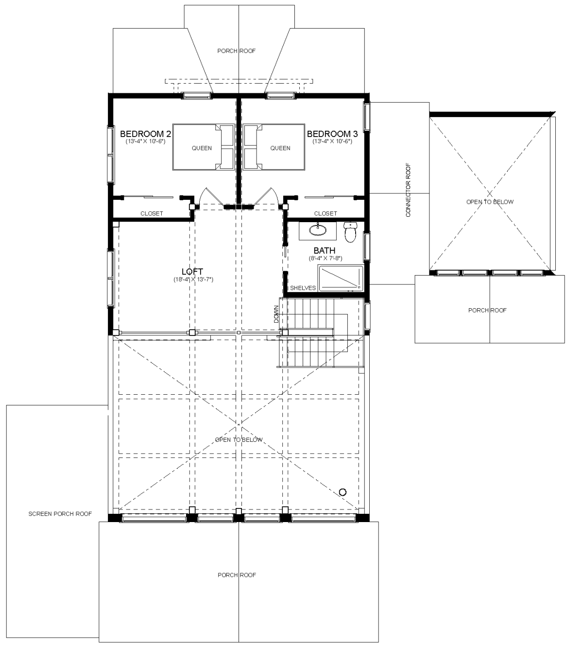
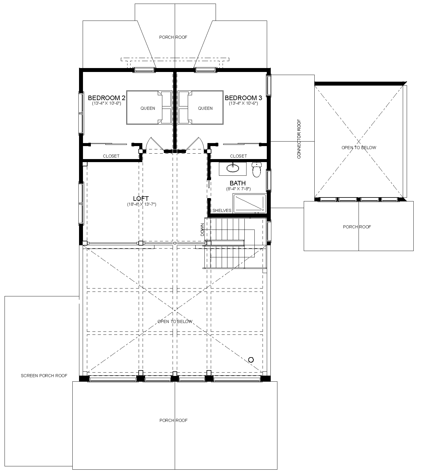
Buffalo Ridge
0
SQ FEET
0
BEDS
0
BATHS
Buffalo Ridge
Buffalo Ridge is a mountain lodge design inspired by our Moose Ridge plan. It has 2,326 square feet of living space, 3 bedrooms and 2.5 bathrooms. It has 746 sq feet in the basement and 766 sq ft in the lower level garage.




















