Annandale
0
SQ FEET
0
BEDS
0
BATHS
Annandale
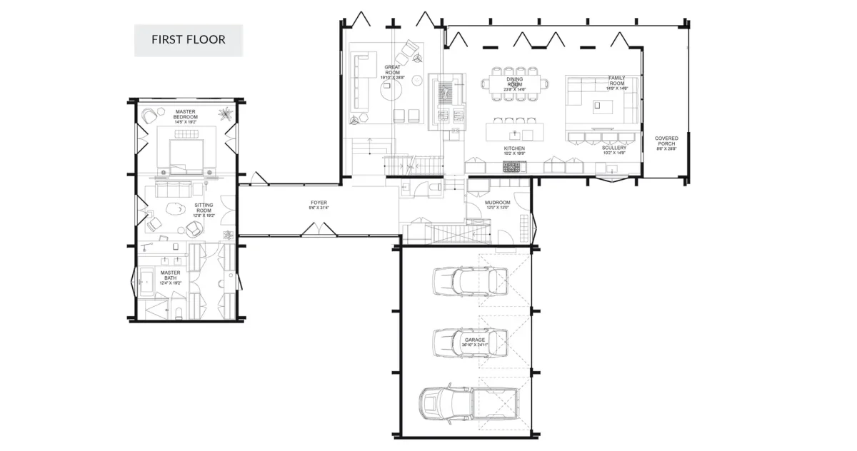
Annandale is 4,386 square feet of spectacular contemporary living space with four bedrooms and 3 baths. The unique layout an entire window wall constructed of steel and glass panels.
Explore Our Newest Build:
Annandale is 4,386 square feet of spectacular contemporary living space with four bedrooms and 3 baths. The unique layout an entire window wall constructed of steel and glass panels.